Visegrád a XI. században
a gótikus kolostor alaprajza (Czobor Béla)
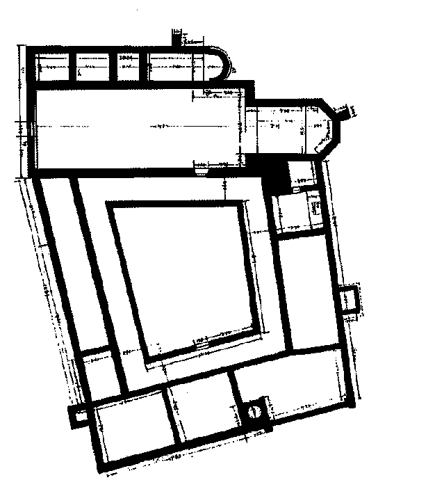
feltárási alaprajz a korai templommal (Buzás Gergely)
vállkő (Visegrád, Salamon-torony = Pannonia Regia I-12: vállkõ másik oldala)
vállkő (Visegrád, Salamon-torony)
vállkő (letét a MNG-ban)
periodizált alaprajz (Szőke Mátyás)
rajzi rekonstrukció (Buzás Gergely)
freskótöredékek (PR III-1)
nyolcszögű törpepillér, fejezet és vállkő (Visegrád, Salamon-torony)
Irodalom:
Buzás
Gergely: Visegrád, Szt. András monostor, in: Régészeti kutatások
Magyarországon 2001 (2003), 237-238.
Buzás
Gergely: Visegrád, Szent András-monostor, in: Műemlékvédelmi
Szemle XII (2002 [2004]) 2.sz. 170-172.
Buzás
Gergely: Visegrád, Szent András-monostor, in: Régészeti kutatások
Magyarországon 2002 (2004), 293.
Buzás
Gergely: Visegrád, Szent András-monostor, in: Régészeti kutatások
Magyarországon 2003 (2004), 319-322.