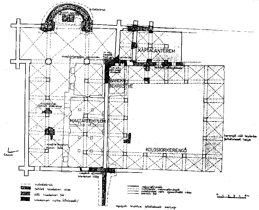
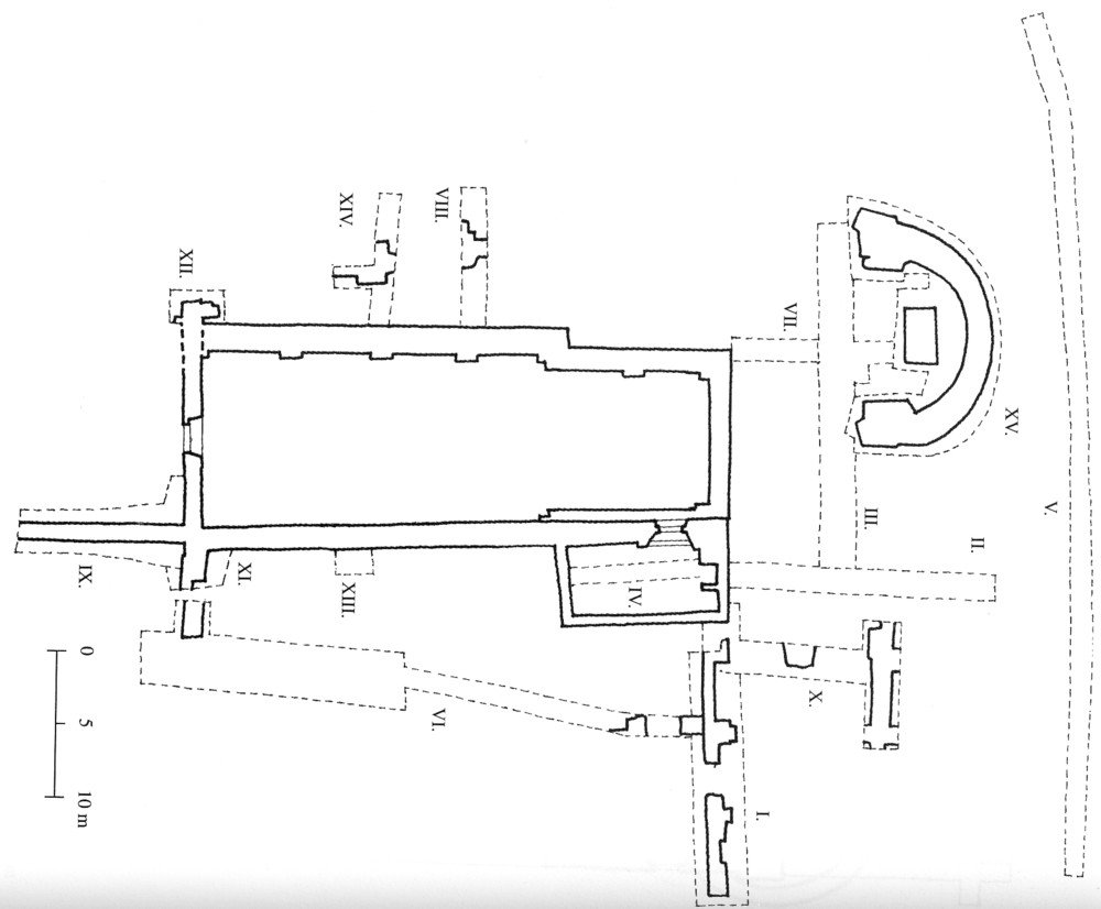
Szentgotthárd, ciszterci apátság temploma
feltárási alaprajz (Valter Ilona)
rekonstruált alaprajz (Valter Ilona)
Ny-i homlokzat feltárási rajza
a maradványok külsõ képe DK-rõl
a feltárt főapszis
a D-i kapu rekonstrukciója (LAHU 6.)
a D-i kapu nézete
D-i kapu jobb oldali fejezetei
Irodalom: