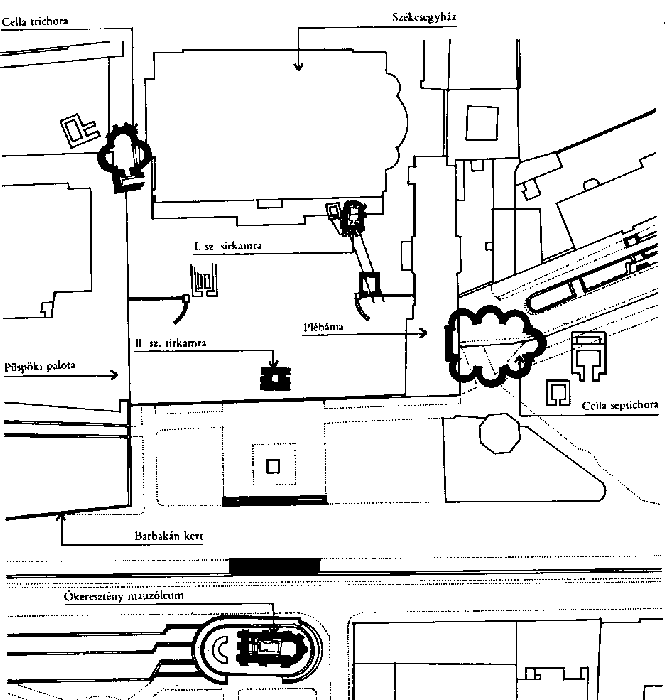
Pécs, székesegyház
A székesegyház ókeresztény gyökerei:
A székesegyház a restaurálás elõtt
- Mark Weinmann metszetei, XVIII. sz.
A székesegyház mai képe:
A székesegyház faragott kövei:
Irodalom:
- Henszlmann I.: Pécsnek középkori régiségei.
I-II. Pest, 1869-1870
- Gerecze P.: A pécsi székesegyház régiségei
I-IV. in: AÉ XXIX (1895) 36-48., 129-146., 333-361., 401-412
- Gerecze P.: A pécsi székesegyház egykori oltársátra
és többi szobrászati munkája, in: AK XX (1897)
72-130.
- Szõnyi O.: A pécsi püspöki múzeum
kõtára. Pécs, 1906
- Gosztonyi Gy.: A pécsi Szent Péter székesegyház
eredete. Pécs, 1939
Ikonográfiai kutatások:
- Dercsényi D.: Adalékok a pécsi dombormûvek
ikonográfiájához, in: AÉ 77 (1950),
90-95.
- Scheiber S.: A fakitépõ Sámson párhuzamai
és forrása, in: AÉ 89 (1962), 68-71.
- Cs. Tompos E.: A pécsi székesegyház kôtárának
kentauros fejezete és szirénes gyámköve. Adalék
a XI. századi magyar épületplasztika ikonográfiájához,
in: MÉ XII (1963), 113-121.
- Zádor M.: A pécsi székesegyház ún.
Ádám és Éva oszlopfõjérôl,
in: AÉ 90 (1963), 195-204.
- Cs. Tompos E.: A "fanyûvõ" Sámson, in:
AÉ 90 (1964 ), 113-118.
- Hajós G.: A pécsi románkori székesegyház
"népoltára". Története, ikonográfiája
és jelentôsége, in: MÉ XV (1966), 185-193.
Újabb kutatások:
- Tóth M.: La Cathedrale de Pécs au XIIe siècle,
in: AHA XXIV (1978) 43-59.
- Tóth M.: Pécs und die Skulptur Ungarns im 12. Jahrhundert,
in: Forschungsfragen der Steinskulptur der Arpadenzeit in Ungarn.
Szerk.: Fitz J. Székesfehérvár, 1979 21-29.
- Nagy E.: Adatok a pécsi székesegyház altemplomi
lejáratainak problematikájához, in: ÉÉT
XV (1983) 327-334.
- Tóth M.: A pécsi székesegyház nyugati karzata,
in: ÉÉT XV (1983) 429-455.
- Tóth M.: Die Umbauung des Heiligkreuz-Altars in der Kathedrale
zu Pécs, in: Skulptur des Mittelalters. Hg. F.Möbius-E.Schubert,
Weimar, 1987. 81-108.
- Tóth M.: A pécsi székesegyház márványkapuja,
in: MÉ XLIII (1994) 5-12.
- Tóth M.: A pécsi székesegyház kõszobrászati
díszítése a románkorban, in: Pannonia Regia
i.m. 123- 147.
- Marosi Ernő:
Die Domskulpturen von Pécs. Kunsthistorische Einordnung und Inszinerung als
ein Paradigma ungarischen Selbstverständisses, in: Die
Kunsthistoriographien in Ostmitteleuropa und der nationale Diskurs. Hg.:
Born, Robert - Janatková, Alena - Labuda, Adam S. (Humbold-Schriften zur
Kunst- und Bildgeschichte 1), Berlin: Gebr. Mann, 2004, 233-252.