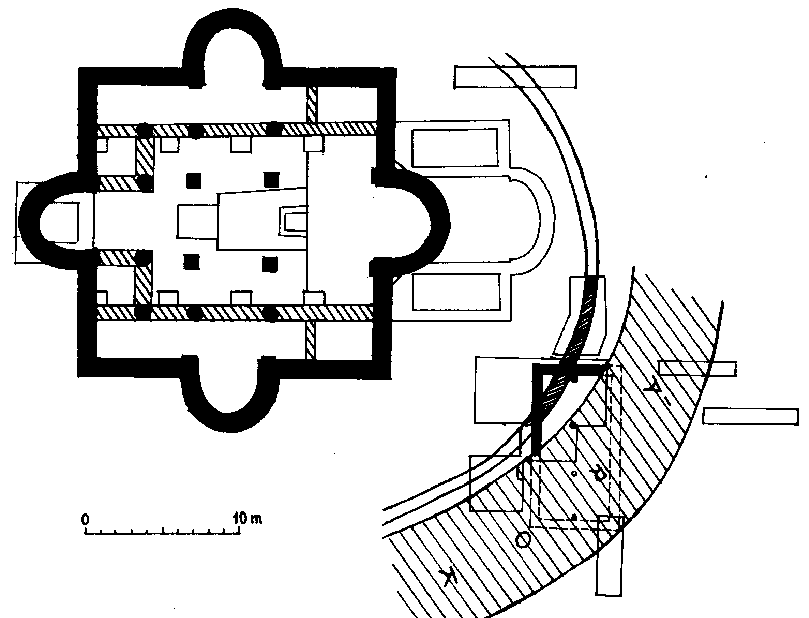
Feldebrõ, bencés apátsági
templom
alaprajzok, metszetek és rekonstrukciók:
külsõ:
belsõ:
kõfaragványok:
kincsművészeti emlékek a XI. sz. végéről:
Irodalom:
- Gerecze Péter: A debrõi altemplom, in: Archaeologiai
Értesítõ XVII (1897) 405-414.
- Lux Géza: A feldebrõi templom, in: A Magyar Mérnök-
és Építész-Egylet Közlönye, 1942.
- Kampis Antal: A feldebrõi altemplom, in: Mûvészettörténeti
Értesítõ IV (1955) 178-194.
- és Csemegi Jószef és Dercsényi Dezsõ
válaszai, Mûvészettörténeti Értesítõ
V (1956) 54-59.
- Erdei Ferenc: Hipotézis a feldebrõi templommal kapcsolatban,
in: Mûemlékvédelem XIX (1975) 196- 202.
- Levárdy Ferenc: Feldebrõ Kelet vagy Róma? in:
Mûemlékvédelem XX (1976) 145-151.
- Tóth Sándor: Feldebrõrõl, hipotézisek
nélkül, in: Mûemlékvédelem XXI (1977)
29-39.
- Levárdy Ferenc: A "feldebrõi feltevések"
értelme, in: Mûemlékvédelem XXI (1977)
129-134.
- Levárdy Ferenc: A feldebrõi falképek ikonográfiai
rendszere, in: Építés-Építészettudomány
XII (1980) 283- 297.
- Kovalovszki Júlia: A feldebrõi altemplom régészeti
kutatása, in: Képzõmûvészeti emlékek
védelme. Az Egri Nyári Egyetem elõadásai
1981, Eger-Bp., 1982. 37-42.
- Tóth Melinda: A feldebrõi falképek, in: uo., 29-35.
- Kovalovszki Júlia: Feldebrõ, plébániatemplom
(TKM) Bp., 1987
ld. még: A feldebrõi altemplom
falképei
vissza: A XI. sz. középsõ
harmadának emlékei